Immobilienangebot
Attraktives Büro in Bad Wörishofen
86825 Bad Wörishofen, Bürohaus zur Miete
Kontaktdaten
-
NameAlexander Haedenkamp
-
FirmaHaedenkamp Immobiliencenter
-
AnschriftVordere Mühlgasse 187
86899 Landsberg am Lech -
E-Mail
-
Telefon
-
Fax+49 8191 9797341
-
Website
Objektdaten
-
Objekt-ID136349210
-
ObjekttypenBüro/Praxis, Bürohaus
-
Adresse86825 Bad Wörishofen
-
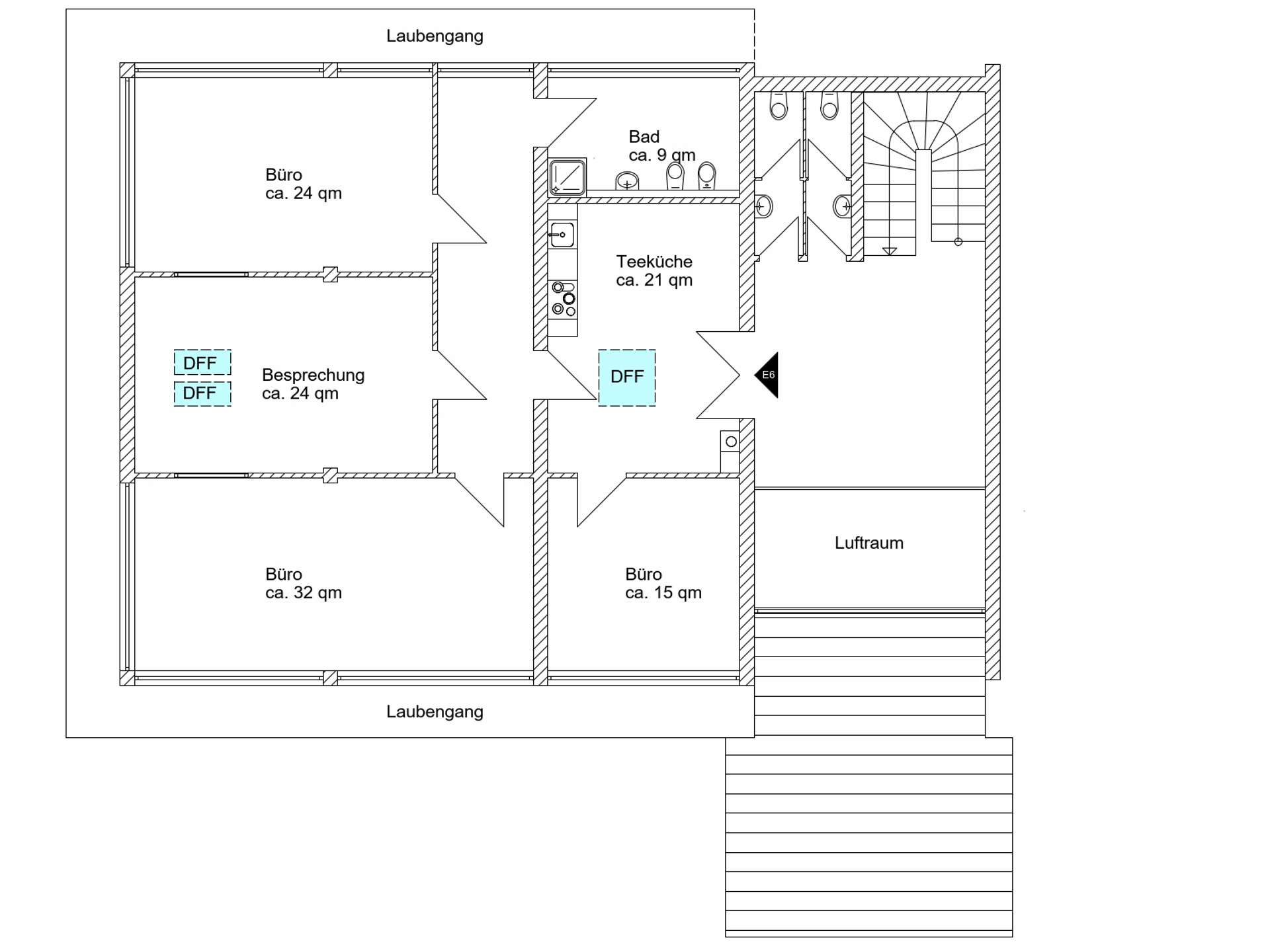
Bürofläche ca.140 m²
-
Balkone1
-
KücheEinbauküche
-
HeizungsartZentralheizung
-
Wesentlicher EnergieträgerGas
-
Baujahr2000
-
HeizungsartZentralheizung
-
StatusVermarktung
-
Mieterprovision (gewerblich)3 Netto-Monatsmieten zzgl. 19 % USt. inkl. MwSt.
-
Kaution3 Netto-Monatsmieten
-
Kaltmiete1.200,00 EUR
-
Nebenkosten250,00 EUR
Ausstattung / Merkmale
- ✓ Balkon
- ✓ Dusche
- ✓ Einbauküche
- ✓ Keller
- ✓ Teppichboden
Energieausweis
-
EnergieausweistypVerbrauchsausweis
-
Ausstellungsdatum02.07.2024
-
Gültig bis02.07.2034
-
GebäudeartNichtwohngebäude
-
Baujahr2000
-
PrimärenergieträgerGas
-
Endenergieverbrauch Strom15,00 kWh/(m²·a)
-
Endenergieverbrauch Wärme35,00 kWh/(m²·a)
Objektbeschreibung
Beschreibung
Diese ansprechenden Büroflächen befinden sich im obersten Stockwerk eines erstklassigen Büro- und Geschäftsgebäudes in Bad Wörishofen. Die lichtdurchfluteten Räume bieten eine inspirierende Arbeitsumgebung und verfügen über Isolierglasfenster, Teppichböden sowie Lamellenvorhänge für eine angenehme Atmosphäre.Die blendfreie Beleuchtung in sämtlichen Räumen und eine strukturierte Verkabelung für IT-Geräte gewährleisten eine moderne Arbeitsausstattung und schaffen die ideale Grundlage für effizientes Arbeiten. Darüber hinaus besteht die Möglichkeit, großflächige Außenwerbung zu platzieren und die Sichtbarkeit Ihres Unternehmens zu maximieren.Der Energieausweis wird derzeit neu angefertigt und spätestens zur Besichtigung vorliegen.
Ausstattung
- Netzwerkverkabelung
- Blendfreie Beleuchtung
- Küche
- Parkplätze direkt vor dem Gebäude
- Großzügiges Archiv bzw. Lagerraum im Souterrain
- Zusätzliche Gemeinschaftsküche im Souterrain
Sonstiges
Das Angebot beruht auf Angaben Dritter. Hierfür übernehmen wir, trotz gewissenhafter Prüfung, keine Gewähr. Irrtümer, Auslassungen, sowie Zwischenverkauf sind vorbehalten.
Sollten Sie selbst Eigentümer einer Immobilie sein und diese verkaufen oder vermieten wollen, dann sind wir Ihnen gerne dabei behilflich.
100 % unserer Auftraggeber empfehlen uns weiter!
Profitieren auch Sie, als Eigentümer, von einem umfassenden und individuellen Makler-Service von Beginn an!
Für an uns vermittelte Aufträge zahlen wir Ihnen eine Tippgeberprovision.
Wir freuen uns auf Ihre Nachricht.
Ihr HAEDENKAMP IMMOBILIENGRUPPE-Team!
Lage
Perfekte Lage für Geschäftsleute: Bad WörishofenBad Wörishofen, eine Stadt, die sich in einer Entfernung von etwa 75 km westlich von München, 50 km südwestlich von Augsburg und etwa 60 km von den Landesgrenzen zu Österreich und der Schweiz erstreckt, bietet eine hervorragende geografische Lage für Unternehmen. In unmittelbarer Nähe finden sich erfolgreiche Unternehmen aus verschiedenen Branchen, was vielfältige Synergiepotenziale schafft. Darüber hinaus können die Bedürfnisse der Mitarbeiter durch verschiedene Versorgungsangebote in der Umgebung problemlos erfüllt werden.Ein besonderer Vorteil für Unternehmer ist der äußerst niedrige Gewerbesteuer-Hebesatz in Bad Wörishofen, der bei lediglich 240 liegt. Im Vergleich dazu beträgt der Gewerbesteuer-Hebesatz in München 490, was bedeutet, dass die Gewerbesteuer in Bad Wörishofen nur etwa halb so hoch ausfällt. Diese günstige steuerliche Situation macht Bad Wörishofen zu einem äußerst attraktiven Standort für Unternehmen und Investoren
Die dargestellte Position der Immobilie ist nur eine ungefähre Angabe.





